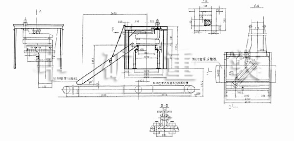
電動轉彎溜子
丁寶勤 13906276368(技術)
電話:0513-88400999 傳真:0513-88400998 郵箱:jszk@vip.163.com

技術性能
1、輸送物料:袋裝水泥:50kg/包
2、擺線針輪減速機
(1)型號:BL15-9-1.1
(2)速比:9
(3)電動機型號:Y90S-4
功率0.55KW 轉速1410r/min
3、電動推桿
(1)型號DT300-60
(2)推力300kg
(3)速度:84mm
(4)電動機型號:A06332
功率0.55KW 轉速2800r/min
電壓380V,電流1.38A
4、行程開關
(1)型號JLXK1-111
(2)電壓380V 電流5A
Technical capacity:
1.Conveying material Bag cement:50Kg/bag
2.Cycloid needle wheel reducer
(1)Type: BL15-9-1.1
(2)Ratio:9
(3)Motor type:Y90S-4 Power: 1.1KW and speed: 1410r/min
3.Motorized handspike
(1)Type:DT300-60
(2)Thrust:300Kg
(3)Speed:84mm/s
(4)Motor type:A06332 Power:0.55KW and speed is
2800r/min. Voltage:380V,Current:1.38A
4. Travel switch
(1)Type: JLXK1-111
(2)Voltage:380V,current is 5A

技術要求:
1、A向視圖中箭頭表示水泥包由B800膠帶運輸機電動轉彎溜子運到B650膠帶機。
2、由B800膠帶運輸機進電動彎溜子的水泥包,必須順裝進放,不允許有橫包現象。
3、行程開關(序號22)在現場安裝。
4、連接架制作安裝現場配鉆,并拆下B800膠帶運輸機上相應托錕。
電動轉彎溜子安裝使用說明
電動轉彎溜子由鋼制機架,可轉動皮帶轉彎機構,電動推桿滑動溜板和控制系統等組成。電動轉彎溜子主要用于袋式包裝物料輸送過程從一條輸送帶向下層的與這垂直的加一條輸送帶的轉彎輸送。適用于水泥、糧食、化工等行業的自動輸送線,能夠讓被輸送的袋裝物料自動轉線。
上一頁:水泥火車散裝機
下一頁:DBG1-10固定式疊包機
產品關鍵詞:電動轉彎溜子









